Purpose-built Colac Haven
3
3
1
Property location
Colac, VIC
Property category
Supported Disability Accommodation (SDA), Supported Independent Living (SIL)
Accommodation type
High Physical Support
We are looking for a social housemate, male or female, to would like to live with two other housemates in this modern, purpose-built home in the heart of Colac.
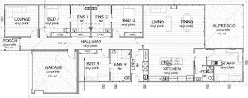
Located on Richmond Street, this spacious and contemporary home has been thoughtfully designed for individuals with high physical support needs. Featuring two generous living areas and a large open-plan kitchen, dining and lounge space, the home promotes both comfort and connection. Each bedroom includes its own private ensuite, and the entire property is fully wheelchair accessible throughout. Outside, a stylish alfresco area offers the perfect spot to relax or entertain. Contact our team to find out more!
- Bedroom with ensuite and built in robe
- Multiple living spaces, including rumpus room
- Home automation and communication technology
- Fully accessible bathroom
- Fire sprinkler system
- Airconditioning and heating
- Dishwasher
- Undercover, accessible parking
- Wide doorways
- Wheelchair accessibility throughout
- SDA Provider: Accessible Projects
- SIL Provider: genU
Located in a quiet residential pocket of Colac, this home is just minutes from local shops, cafes, medical services. It is also a short stroll or drive to beautiful Lake Colac and the Colac Botanical Gardens.
- Must be aged 18 years+
- Eligible for SIL and able to secure an appropriate level of recurrent funding in their NDIS Plan
- Eligible for and able to secure NDIS Specialist Disability Accommodation (SDA) funding, High Physical Support (all funding options can be considered).
- Has the financial means to pay rent which is set at 25% of DSP plus 100% of Commonwealth Rental Assistance, as well as household and general living costs, eg. utilities, food, etc.
- Prepared to sign a Service Agreement with genU Karingal St Laurence, with genU Karingal St Laurence the allocated SIL service provider and a Specialist Disability Accommodation Service Agreement with Accessible Projects.







